金融、法院火狐官方网站|工行营业厅火狐官方网站|办公火狐官方网站|火狐HUOHU(中国)火狐官方网站|靠墙式填单台
CG-DSG-T04

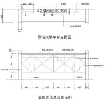
产品参数

  • 型号:

    CG-DSG-T04

  • 尺寸:

  • 材质:

产品描述

暂未添加

收藏

相关产品