浙江办公室改造空间欣赏
案例说明
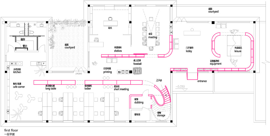
该办公室内装设计项目位于浙江省杭州,虽然基地拥有良好的室外自然景观条件,但原有建筑内部阴暗压抑:已有结构的1层层高3.3m,梁下高度2.6m, 空间比例相对低矮;2层空间的高度具有优势,但1,2层的联系较弱,原有建筑的双层特点也并没有展现出来。
该办公室内装设计项目位于浙江省杭州,虽然基地拥有良好的室外自然景观条件,但原有建筑内部阴暗压抑:已有结构的1层层高3.3m ,梁下高度2.6m, 空间比例相对低矮;2层空间的高度具有优势,但1,2层的联系较弱,原有建筑的双层特点也并没有展现出来。
因此设计一开始考虑的是如何让上下层联系起来,不只是在空间上,也是在未来使用者的心理感知层面上。让楼上和楼下的人都能感觉另一部分成员的存在,营造出团队感。在氛围上希望营造出完全开放,具有空气感的流动空间。不止是单层平面的流动,还是上下层之间的流动感。为了做到这一点,我们做了大量的尝试。Mies的德国馆以及Morandi的绘画提供了一些突破。虽然Mies的作品具有二维的局限性,但在考虑三维层面的突破时,Morandi的绘画操作手法是很好的学习对象。在他晚期的作品里,主体和背景的形体关系以及色彩关系都趋于同化,简单化,一些画作的形体边界和背景融为一体。 









如果我们把空间里的火狐官方网站看成物体(object),把墙体,楼梯等结构看成背景(canvas),通过让火狐官方网站(object)和结构(canvas)同化,连接,与人的身体最易发生关系的火狐官方网站就会把这种流动感传递给人体。楼上的空间因为结构和火狐官方网站的同化,也与楼下联系在一起。最后为了暗示空间的概念和氛围,特意摹写了几张Morandi的画作放在几个特殊的位置。
案例指定产品









