灵动工业风 乌克兰基辅HUB 4.0联合办公空间设计欣赏
案例说明
位于乌克兰首都基辅的联合办公空间HUB 4.0由Nika Vorotyntseva design & architecture bureau设计。HUB 4.0 是一种新型的超现代办公空间,众多乌克兰最具发展潜力的公司都在这里汇集。整体空间共分三层。
位于乌克兰首都基辅的联合办公空间HUB 4.0由Nika Vorotyntseva design & architecture bureau设计。HUB 4.0 是一种新型的超现代办公空间,众多乌克兰最具发展潜力的公司都在这里汇集。整体空间共分三层。
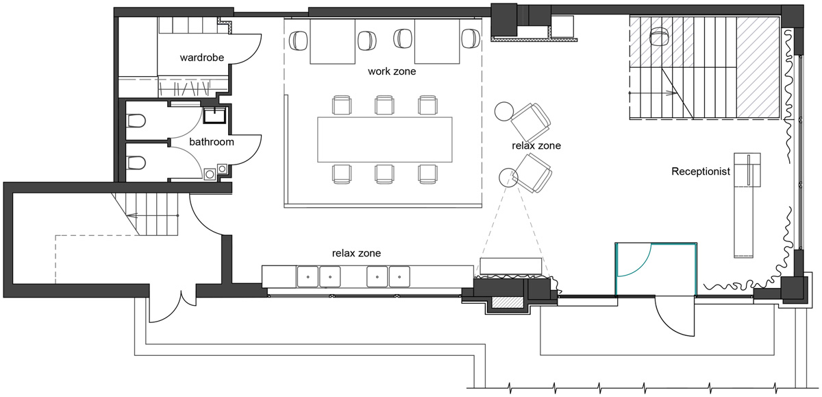
在一层的大厅,一幅热熔金属打造的“HUB 4.0”LOGO装饰板醒目的矗立眼前,其后的楼梯采用清透的玻璃护栏。动感明亮的灯光勾勒出长形的接待台。胶合板制作的创意隔墙界定了工作空间。
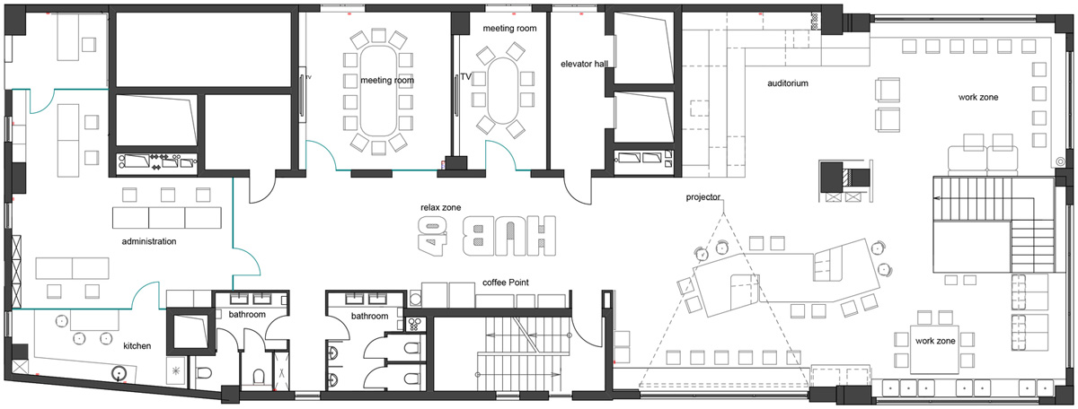
二楼的空间灵动而多元,这里规划了大量休闲交流空间:咖啡区、铺着软垫的窗台、一处大型阶梯式剧场休闲空间,可用于工作、聊天、聚会、简报或讲座等活动。
三层主要用作联合办公空间,配有会议室、skype视频聊天室、以及几间专题会议室。这里还配以开放而流动的新闻中心、以及采用接待区的格调布局的商务洽谈区。在这个洋溢着极简工业美学的工作空间里,设计团队运用了大量的创意吸引创业者,如鲜明饱和的色彩点缀、大量的创意图形与文字设计等。





















